返回首页
|
公司简介
|
联系我们
|
型材散热器
首页
关于亿和
新闻中心
产品展示
产品服务
在线留言
联系我们
电子散热器列表
电子散热器
插片散热器
型材散热器
高密齿散热器
紫铜散热器
路灯散热器
叉指形散热器
机箱一体化散热器
CPU散热器
加热器
电力调整器专用散热器
充电器用电源散热器
产品展示
首页
-
产品参数
-
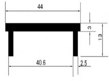
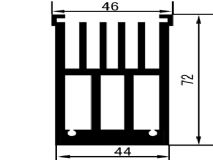
40mm型材散热器
YH-4064
YH-4065
YH-4066
YH-4067
YH-4068
YH-4069
YH-4070
YH-4071
YH-4072
首页
上一页
5
6
7
8
9
10
11
下一页
尾页
共
12
页
101
条数据
镇江市亿和散热器(镇江亿和电子有限公司) 版权所有
型材散热器
苏ICP备14050131号
苏公网安备 32110102321329号
辰星科技制作维护
展开
收缩
QQ咨询
在线咨询
客服一